デラモット浅草エスト 4階
セブンイレブン 台東石浜店まで徒歩3分と近場にコンビニがあるのもポイント。セキュリティ面は、オートロック・TVインターホンなどを備え付けているので安心して暮らせます。エレベーター付きの物件です。台東区で新たな生活を始めるなら、常磐線南千住近くはいかがでしょうか?住まい探しは、トラスト・レジデンス 瑞鳳 森下店にお任せ下さい。
- 賃料
- 16.2万円
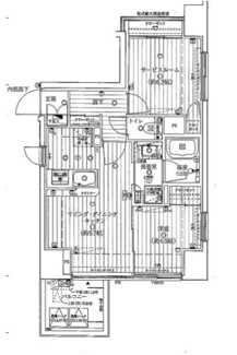
- 間取り
- 2LDK
- 専有面積
- 45.01㎡
- 所在階
- 4階
- 管理費・共益費
- 15,000円
- 敷金
- 0ヶ月
- 礼金
- 2ヶ月
-
情報の見方
担当者のコメント 見山

- 薬や日用品を買うのに便利なくすりの福太郎 橋場店まで、419mです。室内設備は浴室乾燥機・洗面化粧台などが揃っており、とても充実しています。セキュリティ面は、TVインターホン・オートロックなど充実しているので安心して生活できます。共用部にはゴミ出し24時間OK・宅配ボックスなどが備わっておりとても充実しています。収納はシューズボックス・クロゼットなどが備え付けられているので、衣類や日用品の収納に重宝します。台東区に引っ越しをご予定なら、設備などのご希望条件をトラスト・レジデンス 瑞鳳 森下店にお伝えください。お客様の希望条件に合ったお部屋をご紹介致します。
ポイント・特徴
物件概要
【マンション】 物件番号:98825548 情報更新日:2025年11月11日 次回更新予定日:2025年11月25日所在地 東京都台東区清川1丁目 交通 間取り/詳細 2LDK
LDK/洋室 6.3帖/洋室面積/バルコニー面積 45.01㎡/- 賃料 16.2万円 管理費・共益費 15,000円 敷金/礼金/保証金 0ヶ月/2ヶ月/- 償却/敷引 -/- 更新料 - 敷金積み増し ペット飼育:1ヶ月 権利金/雑費 -/- 駐車場/月額料金 -/- 保険加入/料金 有/- 保険名/保険期間 -/- 保証人代行義務 必加入 保証会社 その他 保証会社詳細 初回保証料:賃料総額の50% 10000円/年 向き 南 築年月(築年数) 2019年 7月 (築6年) 契約期間 2年 種別/構造 マンション/鉄筋コンクリート 部屋/所在階/階建 -/ 4階/ 9階建 総戸数 - 現況/入居可能日 居住中/相談 特優賃 - 取引態様/賃貸区分 仲介/一般 物件番号 98825548 取引条件の有効期限 2025年11月25日 設備条件 - ペット相談
- 陽当り良好
- 保証人不要
- 2人入居可
- 高齢者相談
- 法人可
- 室内洗濯機置場
- フローリング
- バルコニー
- 都市ガス
- 公営水道
- 公共下水
- 24時間換気システム
- エレベーター
- 電気有
- 照明器具付き
- 駐輪場
- 敷地内ごみ置き場
- ガスコンロ
- コンロ2口以上
- システムキッチン
- 対面式キッチン
- コンロ3口
- カウンターキッチン
- バス・トイレ別
- 追焚機能浴室
- 浴室乾燥機
- 温水洗浄便座
- 洗面台
- シャワー
- 独立洗面台
- エアコン
- シューズボックス
- CS
- BS
- インターネット対応
- オートロック
- TVモニタ付インターホン
- 宅配ボックス
- 防犯カメラ
- 24時間ゴミ出し可
備考 近くにはセブンイレブン 台東石浜店(徒歩3分)がありちょっとした買い物に便利です。室内設備は洗面所独立・浴室乾燥機など豊富に揃っており、過ごしやすいお部屋になっております。トラスト・レジデンス 瑞鳳 森下店は住まい探しを通して、お客様のお悩みを解決して参りました。台東区地域の不動産情報をお求めなら是非ご利用ください。セブンイレブン 台東石浜店まで徒歩3分と近場にコンビニがあるのもポイント。共用部には宅配ボックス・ゴミ出し24時間OKなどが備わっておりとても充実しています。ぜひご覧いただきたい賃貸物件です。トラスト・レジデンス 瑞鳳 森下店で、これから先の新しい住まいをじっくり選んでいきましょう。わたくしたちがお手伝い致します。 条件(その他) 室内抗菌代:1万3,000円 鍵交換代:3万3,000円 入居者サポート:2,200円(月額) 取扱会社 - トラスト・レジデンス 株式会社瑞鳳 森下店
- 東京都江東区森下2丁目2-2 まことビル1F
- TEL:03-5625-4600
- 東京都知事 (4) 第92026号
- 公益社団法人不動産保証協会
公益社団法人首都圏不動産公正取引協議会加盟業者
※地図上に表示される物件の位置は付近住所に所在することを表すものであり、実際の物件所在地とは異なる場合がございます。
物件お問い合わせ
- 掲載物件数
-
件
- 公開物件数
-
件
- 本日の更新件数
-
件
同じエリアのマンション
この物件を見た方へのお勧め物件
- エストゥルース入谷
- 16.3万円 1LDK/40.12㎡
- 東京都台東区入谷2丁目
- 日比谷線「入谷」駅 徒歩5分
- グラントレゾール浅草
- 16万円 2LDK/50.10㎡
- 東京都台東区浅草5丁目
- つくばエクスプレス「浅草」駅 徒歩10分
- エム・グランヴィア駒形
- 16.4万円 1LDK/40.18㎡
- 東京都台東区駒形1丁目
- 都営浅草線「浅草」駅 徒歩2分
- レジディア入谷
- 16万円 1LDK/42.00㎡
- 東京都台東区下谷1丁目
- 日比谷線「入谷」駅 徒歩3分
- MAISON MK
- 16万円 1LDK/41.07㎡
- 東京都台東区下谷1丁目
- 日比谷線「入谷」駅 徒歩2分















